PROFILE
ACCESS
CONTACT
ホーム
業務内容
施工事例
当社について
外部リンク
万能倉分譲
ホーム
施工事例
万能倉分譲
担当者より
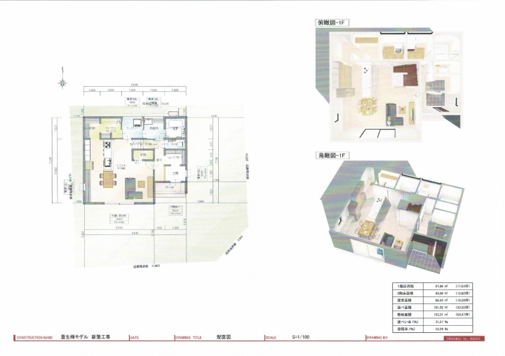
奥様の動きやすい動線を考慮した間取りをつくりました。
玄関の収納スペースも大きくつくり、お父さんのゴルフバッグ、
お子さんの自転車、家族のキャンプ用品もしっかり収納できます。
お問い合わせはこちら
PAGE TOP